Parkview by Pardee Homes

The process by which we design our homes and communities has been growing and evolving for centuries. Although this lifestyle evolution seems to happen slowly, every so often we come across a project that is a game changer. With lot sizes as small as 45′ x 70′, Parkview for Pardee Homes, has created luxury living at an affordable rate.

At Parkview, the experience begins at the street. Shorter side streets as well as visual connections to the nine-acre community park alleviate the density of the site. Variable lot widths allow for diverse footprints creating more massing opportunities at the front of the plan. Differing elevation types contain a high level of detail with wrought iron elements, corbels and sculptural trim components as well as brick accents and deep window recesses. These authentic elements define the Spanish Villa theme of the community.

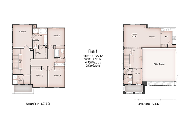
Once inside the homes, visitors are engaged with open stairs bringing light down into the entry. At the back of the home the floor plans open up with windows and sliding glass doors creating an indoor/outdoor living concept within a private space. The penetration of light from two sides of the great room gives both width and depth to a smaller amount of square-footage. Smaller square footages ranging from 1,761 SF to 2,135 SF are still able to yield four-bedroom plans with den options and loft spaces. Careful design configuration of the second floor provides home owners with a light and open space at the top of the stairs as well as a careful separation between master suite and secondary bedrooms.

Starting in the $400,000s, Parkview has brought an authentic, luxury lifestyle to Ocean View Hills, San Diego. Located at 5023 Ballast Lane San Diego, CA 92154, come check them out!

You Might Also Like

Leave a Reply