La Floresta – A Crowd Pleaser in North Orange County
There is definitely a difference in perception between south Orange County and north Orange County. North of Newport Boulevard (or Avenue) the streets are organized in a typical city grid that would make Thomas Jefferson proud but south of Newport the streets begin to devolve into a bowl of spaghetti which often leaves me disoriented and in need of the Waze app. South county is beautiful, no doubt. It offers newer planned communities, more parks, beaches and amazing coastal neighborhoods while the older north County is home to the landmarks and venues that put Orange County on the map: Disneyland, Knott’s Berry Farm, Anaheim Stadium and the Honda Center.
Shannon and I both grew up in north County and have recently been discussing the monopoly that south County seems to have on newer, more progressive retail and dining options, which cater to a younger demographic. But now, at La Floresta, north County has begun to balance the scales by opening it’s first Whole Foods!
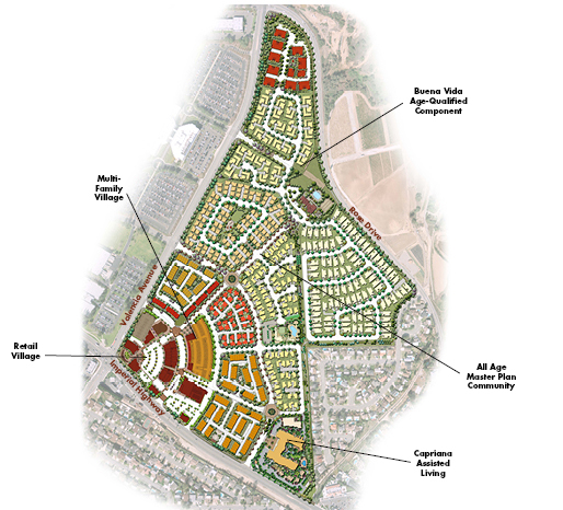
La Floresta Mixed-Use Development Illustrative | Land Concern Landscape ArchitectureWHA has been the driving design force at La Floresta, having written the community guidelines, designed both clubhouses and the age-qualified housing collection, Buena Vida by Pulte Homes. The 120-acre development also offers stacked-flats, townhomes and detached single-family neighborhoods from a wide range of home builders in a cohesive blend of Spanish, Monterey and Tuscan flavors.
A new retail component is located on the prominent corner of Valencia Avenue and Imperial Highway with Mendocino Farms, Urban Plates, Jimmy’s Famous American Tavern, CorePower Yoga and Shannon’s gym, Orange Theory – in addition to Whole Foods. Designed in a contemporary style, the center appeals to all ages and is easily accessed by either street, with ample parking. La Floresta residents will enjoy a short walk to these new retail opportunities. A sunken circular garden gives Shannon and other local patrons a place to enjoy a sandwich or cool down after a workout.
Sculptural elements in this outdoor space pay homage to the history of the site which was originally the Union Oil Research Center, until a merger with Chevron in 2005. I am personally very fond and familiar with this site because my father worked there for almost 30 years (I even learned how to drive a stick-shift in its massive parking lot.) To their credit, Chevron has been very involved in the development of La Floresta, growing out of their desire to leave behind a positive addition to the city of Brea.







Leave a Reply