The 301 Building Under Construction
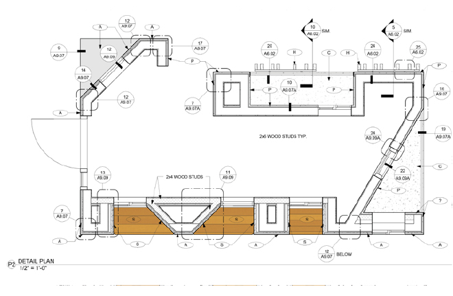
Construction at The 301 is moving along quite nicely this month. The contractor engaged WHA to assist in creating plans for a wall mock-up. These are often used on larger projects where there are multiple unique window, door and wall details. The mock-up can also serve as a tool for the subcontractors to understand how the wall assembly is constructed.
In the case of The 301, there are plenty of angled walls, recessed windows, and material transitions to mock-up. In all, this mock-up compiles almost 100 different details in order to show all unique wall conditions on the building. The urban studio team used Revit to create a 3D model to better demonstrate all the details being utilized. The contractor has begun constructing the mock-up; it’s being built within the parking structure since there isn’t ample room elsewhere on the site.
More photos of the completed mock-up to come. Meanwhile, catch up on other construction photos and information here.
If you are interested in contemporary style architecture, make sure to check out this blog post.






Leave a Reply